-
-
-
Tổng tiền thanh toán:
-
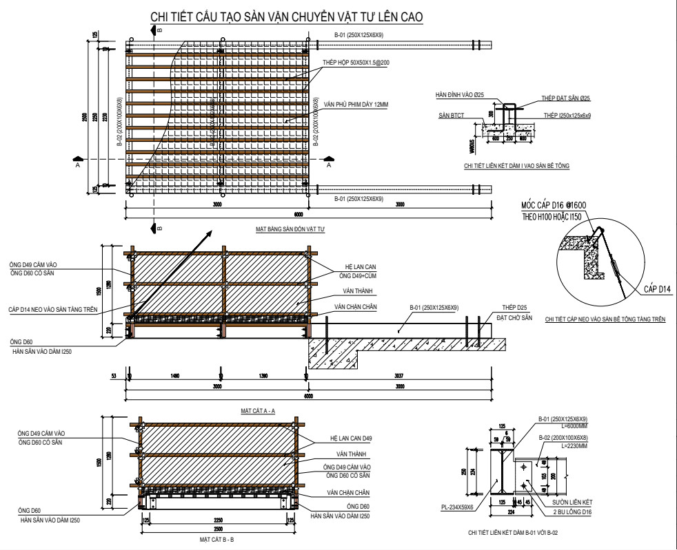
Thông tin cơ bản về sàn tiếp tiệu:
+ 02 thanh dầm I250x125x6x9, L=6000m có hàn tai móc cáp bằng thép dày 10mm
+ 03 thanh dầm I200x100x6x8, L=2230m có bản mã liên kết thép dày 10mm
+ Các thanh dầm được liên kết với nhau bằng bulông Bulong M16x2.5 qua các bản mã liên kiết
+ Trên thanh dầm I250 được hàn thêm ống chờ D60 để lắp lan can bằng ống tuýp D48 cao 1.2m
Sàn chuyển vật liệu hay còn có cách gọi khác là sàn cẩu đồ, sàn tiếp liệu, sàn công tác ... Là thiệt bị không thể thiếu trong thi công xây dựng, đặc biệt là nhà cao tầng
Sàn chuyển vật liệu dùng để làm sàn công tác chứa vật liệu từ tầng đã thi công xong bên dưới để chứa vật liệu tạm thời ra bên ngoài sau đó dùng cẩu tháp để cẩu chuyển tiếp liên các tầng thi công phía trên hoặc chuyển hạ xuống phía dưới.

Cấu tạo sàn chuyển vật liệu gồm:
+ 02 thanh dầm I250x125x6x9, L=6000m có hàn tai móc cáp bằng thép dày 10mm
+ 03 thanh dầm I200x100x6x8, L=2230m có bản mã liên kết thép dày 10mm, kích thước 234x259x163mm
+ Các thanh dầm được liên kết với nhau bằng bulông Bulong M16x2.5 thông qua các bản mã liên kiết
+ Trên thanh dầm I250x125x6x9, L=6000m được hàn thêm ống chờ D60 để lắp hệ lan can tuýp D48 cao 1.2m
+ Mặt sàn chuyển đồ được lát bằng gỗ hoặc bằng tấm thép nhám chống chơn chợt
+ Thành biên sàn được gắn tấm chắn vật dơi xung quanh và lắp lan can an toàn bằng ống tuýp D48 cao 1.2m
+ Sàn chuyển vật liêu được sơn màu cảnh báo an toàn màu vàng hoặc màu cam


Tùy vào 1 số vật liệu do khách hàng đưa ra mà giá thành sẽ có các mức khác nhau và mỗi thời điểm giá nguyên vật liệu cũng khác nhau. Tuy nhiên Giàn giáo COSA xin gửi bảng giá sơ bộ vật liệu chính tạo lên 1 bộ sàn tiếp liệu để Khách hàng tham khảo.

Giá sàn tiếp liệu
Có rất nhiều đơn vị gia công cơ khí có thể gia công được sàn tiếp liệu, chỉ cần cung cấp bản vẽ thiết kế và các yêu cầu cụ thể theo chỉ định vật liệu, màu sắc ...
Giàn giáo COSA là đơn vị có gần 10 năm kinh nghiệp cung cấp giàn giáo và các thiết bị an toàn cho các tổng thầu xây dựng lớn tại Việt Nam như Coteccons, Hòa Bình, Vinaconex, Phục Hưng Holdings, COFICO, Ecoba ... chúng tôi hiểu rõ những yêu cầu an toàn nghiêm ngặt trong việc cung cấp thiết bị an toàn đặc biệt là Sàn chuyển vật liệu. Chính vì vậy chúng tôi cam kết gia công và cung cấp thiết bị cho khách hàng sản phẩm đạt chất lượng an toàn tuyệt đối, bảo hành thiết bị trong 12 tháng.
Hãy liên hệ với chúng tôi để được tư vấn chí tiết và báo giá
CÔNG TY CỔ PHẦN XÂY DỰNG VÀ THƯƠNG MẠI COSA
Đ/c: Số 51 Ngõ 5, Đường Nguyễn Khánh Toàn, Phường Quan Hoa, Q. Cầu Giấy, TP. Hà Nội
Cơ sở SX 1: KCN Bắc Thăng Long, Đông Anh, Hà Nội
Cơ sở SX 2: Phùng Xá, Thạch Thất, Hà Nội
Hotline: 0979 394 294
Email: cosa.jsc@gmail.com
Xem thêm các sản phẩm khác tại đây: